2, Exchequer Gardens, Thruxton
Guide Price - £450,000
Key features
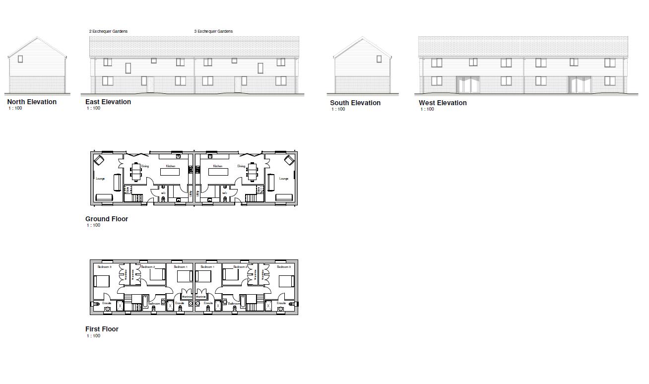
Welcome to Exchequer Gardens
Constructed to an exacting standard by Buchanan Properties, this exciting development mixes traditional design with contemporary touches and enjoys a slightly elevated position with some fine views over the surrounding landscape. Offering plenty of light and space throughout, the houses offer a range of features including underfloor heating to the ground floors, modern double-glazed windows, solar photo voltaic Giv energy systems, contemporary fully fitted kitchens with a fantastic range of integrated appliances, bespoke oak joinery and many other features all ensuring a turnkey finish on purchase.
- A 10-year build warranty.
- Steibel air source heat pumps.
- Car charging points.
- Cat 6 installation.
- Limestone and porcelain floors.
- Electric underfloor heating in the bathrooms.
- Fitted kitchens with granite worktops and an outstanding range of fitted appliances. Quooker taps.
- Double glazing throughout and bi-fold doors.
- Central heating.
- Fitted carpets.
Notes and Comments:
Situation and description
The small hamlet of Thruxton lies in southwest Herefordshire and is made up of just a small number of individual properties which surround a pretty village church. The popular nearby villages of Kingstone, Madley and Allensmore, offer an excellent range of local services with a choice of shops, pubs and schools, with more extensive facilities then available at the cathedral city of Hereford, which lies only 7 miles away and includes a mainline train station..
This very attractive and small development creates a fantastic opportunity, in our view with each property occupying a large plot . There is plenty of parking space and each house has a range of features as well as far reaching views over the surrounding landscape. Full of light and space and with a bespoke finish viewing is highly recommended.
Services and Considerations
Mains electricity, mains metered water, private drainage system shared.
Heating Steibel air source heat pump.
Six solar panels which produce approximately 2.8Kw which are battery
ready with a large inverter if more panels are fitted in the future.
Tenure Freehold
Council Tax Rating to be confirmed / EPC Rating to be confirmed
Broadband https://checker.ofcom.org.uk/
Mobile Coverage https://checker.ofcom.org.uk/
It is not our company policy to test services and domestic appliances, so we cannot verify that they are in working order. These and any matters relating to Rights of Way should be checked with your Solicitor or Surveyor.
Money Laundering Regulations Prospective purchasers will be asked to produce identification, address verification and proof of funds at the time of making an offer.
Directions
What3Words //
ightcap.safari.zinc.
From Hereford take the A465 signposted towards Abergavenny and continue for 5 miles before turning right at Locks Garage towards Hay on Wye, Peterchurch, Kingstone and Thruxton. Proceed on this road for approximately 1.5 miles before turning left towards Thruxton Church. At the brow of the hill turn left and then left again into Exchequer Gardens.
Misrepresentation Act 1967
These particulars are believed to be correct but their accuracy is not guaranteed nor do they form part of any contract.
