Green Gables, Eardisley, Hereford
Guide Price - £875,000
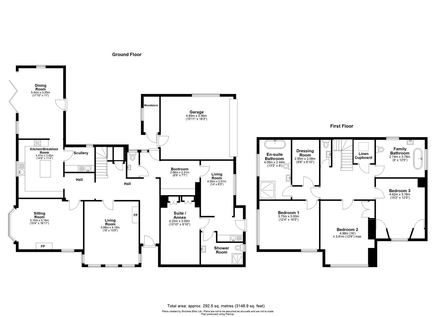
Key features
On the edge of this thriving and well serviced rural village, a very striking detached house, which blends character with contemporary style and offers just under 3000 sq ft of living space, all set in a generous plot.
- Four bedrooms
- Three main reception rooms
- Impressive kitchen with adjoining dining / family room
- Extensive parking and double garage
Notes and Comments:
Situation and Description
This very striking house forms part of the popular village of Eardisley, which has a thriving community and offers a good range of local services including a village store, village hall, historic church, public house, primary school and creche. Lying in northwest Herefordshire, Eardisley is within easy reach of the ever-popular market towns of Kington and Hay on Wye, with the latter well known for its world-famous literary festival. The cathedral city of Hereford is within easy reach and provides more extensive facilities, with a good choice of shops and restaurants, as well as leisure facilities and rail links to other parts of the country.
Green Gables was originally constructed to an individual design almost 100 years ago. Contemporary for its time it was, and still is, a very impressive house with plenty of living space laid out over two floors. In recent years the internal space has been re-modelled and now includes a self-contained ground floor suite/annex with its own living room and kitchenette, a stunning main kitchen/breakfast room with a separate scullery, a fantastic dining room with vaulted ceiling and bi fold doors ideal for entertaining and two large and very comfortable reception rooms.
On the first floor there are three further bedrooms, the master enjoying a large en-suite bathroom and dressing room, with a separate bathroom for the remaining bedrooms, all accessed from a large landing.
Throughout the house there is a feeling of light and space and most of the bedrooms have distant views.
The house then stands in its own large plot and is approached from a small lane by its own private
driveway which leads up to a large parking area to one side of the house. Access can then be gained to a very useful double garage and wood store.
The gardens extend to approximately 0.75 of an acre and are laid to lawn interspersed with a variety of trees with floral borders, patios and a useful garden store.
Although ideal as a family house, in recent years the property has been an upmarket holiday home, and we understand that the majority of the contents could also be purchased, subject to negotiation.
Services and Considerations
Mains electricity, drainage and water all connected.
Oil fired central heating, solar panels and wood burners.
Tenure freehold
Council Tax Band G
EPC E 52/76
Broadband BT through cables - Fibre with BT Halo 3
Mobile Coverage 4G
It is not our company policy to test services and domestic appliances, so we cannot verify that they are in working order. These and any matters relating to Rights of Way should be checked with your Solicitor or Surveyor.
Money Laundering Regulations Prospective purchasers will be asked to produce identification, address verification and proof of funds at the time of making an offer.
Directions
What three words ///gone.gallons.heightens
From Hereford take the A438 towards Brecon for approximately 12 miles and follow the signs for Eardisley and Kington. At Eardisley proceed through the village and turn left for Woodseaves. After approximately 250 yards the property will be found on the right-hand side.
Misrepresentation Act 1967
These particulars are believed to be correct but their accuracy is not guaranteed nor do they form part of any contract.

