Old Court Barn, Brobury, Hereford tucked away but not isolated
Offers Over - £825,000
Key features
Converted to an exacting standard, an outstanding opportunity to purchase a very spacious detached barn, in a tucked away but not isolated location in the heart of the Wye Valley, set in gardens and land extending to 6.5 acres.
- Four bedrooms
- Three open plan living spaces
- Stunning kitchen
- Three principal bathrooms
- Modern heating system
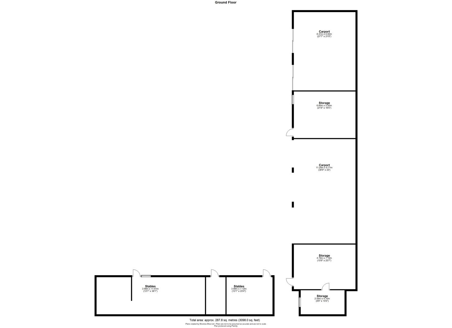
- Extensive range of outbuildings
Notes and Comments:
Situation and Description.
Lying in the heart of the beautiful Wye Valley, Old Court Barn lies at the end of a no-through road, in a tucked away rural location with just two other equally individual properties. This stunning location offers easy access to some outstanding countryside, with the Wye Valley Walk close by. Within in a short drive, the popular village of Staunton on Wye includes an award-winning primary school, a village hall and the superb Oakchurch Farm shop, known locally as the ’Little Harrods of Herefordshire’. In addition, within a mile, Brobury House and Gardens offers a very good café, and Bredwardine has a popular pub which has fishing rights on the River Wye. More extensive facilities can then be found at the cathedral city of Hereford (12 miles), with a mainline train station, and at the ever-popular bustling market town of Hay on Wye (9 miles) with its now world famous annual literary festivals.
Once part of a traditional farm, Old Court Barn is a Grade II listed property which has been converted in recent years to create a stunning and individual home. With an exacting attention to detail, the work has been carried out to compliment the original character of the barn, whilst adding a state of the art heating system which provides underfloor heating to the whole of the ground floor. Other features include double glazing throughout, exposed timbers, limestone flooring, oak joinery, a beautifully fitted kitchen and modern bathrooms which have a period feel. Offering over 2500 sq. ft of space, the barn is well designed throughout and is supported by a range of original outbuildings which provide extensive covered storage for a variety of uses. The gardens and land then provide plenty of outdoor space to explore, with a large pond, productive apple orchard, and some mixed woodland.
On arrival, a shared gated entrance leads to a huge private parking and turning area to the front of the barns and its associated buildings. A large, glazed door then leads into a dining hall with full height windows to the front and rear, high vaulted ceiling and galleried landing above, all providing plenty of light and space. The main living area is again full of character and is partially sub divided by a double fronted central brick fireplace with wood burner.
At the other end of the barn and adjoining the dining hall, a stunning kitchen offers an extensive range of cupboard space with granite worktops, twin bowl deep fill Belfast sink, and built-in appliances including fridge and freezer, dishwasher, and large Aga range style cooker. The ground floor space is then supported by a practical utility room, WC, plant room, and study, the latter offering a quiet space away from the main hub of the house.
From the dining hall an oak staircase with glazed side screens leads up to a first-floor galleried landing with high vaulted ceiling and views over the gardens and courtyard. Access can then be gained to a master bedroom with its own en-suite bathroom and three further individual bedrooms which are supported by two further family bathrooms. All the bedrooms have vaulted ceilings, as well as views over the gardens and land.
Outside
To the front of the barn lie two original listed outbuildings which offer extensive and practical space for a variety of uses including covered garage and storage space, as well as stabling.
The gardens and land then form a particular feature with the total plot extending to approximately 6.5 acres. To the rear and side of the barn the gardens are laid to lawn and run down to a large pond which is a haven for wildlife. The lawns then join a delightful apple orchard with approximately 40 cider apple trees. The grounds are Ideal for exercising dogs and are a natural adventure playground for children with areas of woodland to explore and some lovely viewpoints over adjoining farmland. In our view, Old Court Barn is a fantastic opportunity to buy a spacious and practical rural retreat in the heart of Herefordshire.
Services and considerations.
Architects certificate with 2/3 years remaining
Mains electricity and water. Private drainage. Modern electric central heating system.
Three face electric supply to the main outbuilding with a separate consumer unit in place for a fast-charging EV point
Tenure Freehold
Council Tax Band F
EPC Rating E 43/61
Broadband Copper overhead line
Mobile Coverage 4G
It is not our company policy to test services and domestic appliances, so we cannot verify that they are in working order. These and any matters relating to Rights of Way should be checked with your Solicitor or Surveyor.
Money Laundering Regulations Prospective purchasers will be asked to produce identification, address verification and proof of funds at the time of making an offer.
Directions
What three words/// extremely.forest.troubles
From Hereford take the A438 in a westerly direction signposted for Brecon. Continue for approximately 9 miles passing Oakchurch Farm Shop and the signs for Staunton on Wye village. Turn left signposted Bredwardine and proceed over the brow of the hill before taking the next left-hand turn into an unmarked road. Continue down the hill and at the end of the lane bear right and the entrance to Old Court Barn will be found on the left-hand side.
Misrepresentation Act 1967
These particulars are believed to be correct but their accuracy is not guaranteed nor do they form part of any contract.


