Property in Leintwardine

Adforton House, Adforton, Leintwardine

Guide Price - £1,150,000 Sold - Subject To Contract

Key features

Nestling on the edge of this small rural village and enjoying an elevated southerly aspect, a very attractive and spacious period house, set in gardens and land which extend to approximately 5 acres, with barns, stabling and a recently constructed 40m x 20m manege.

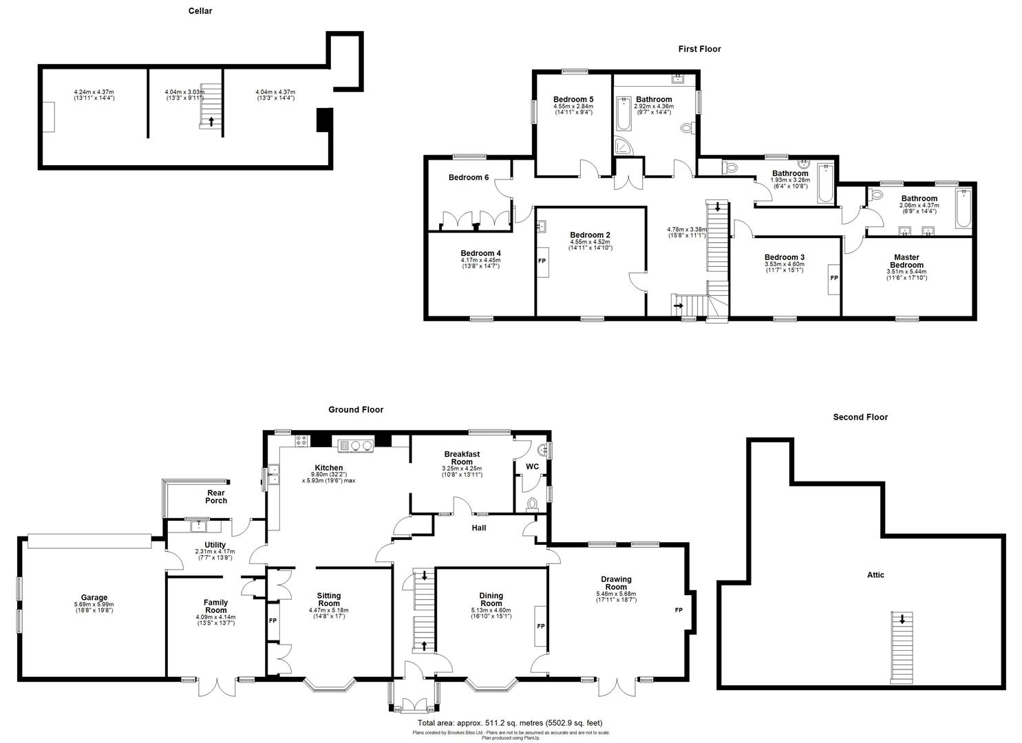
  • Six bedrooms and three bathrooms
  • Three main reception rooms
  • Farmhouse kitchen / breakfast room with Aga
  • Useful attic and cellar space
  • Excellent equestrian yard and manege

Notes and Comments:

Situation and Description
The charming village of Adforton lies in north Herefordshire in a stunning natural landscape made up of wooded hills, farmland and small lanes, making the area ideal for riding, walking, cycling and exploring the great outdoors.

Centred around a pretty village church, Adforton is supported by the larger villages of Wigmore (1.5 miles) and Leintwardine (2 miles), which between them have primary and secondary schools, a garage, petrol station, butchers, village shops, public houses and the ruins of Wigmore Castle, which was once the seat of the Mortimer family.

More extensive facilities can be found at the ever-popular market town of Ludlow (11 miles), which has a train station and a choice of shops, cafes and award-winning restaurants and much more. Hereford then lies some 22 miles to the south-east.

Adforton House occupies a prominent position within the village and enjoys a very pleasant outlook to the south-east over farm and woodland. Ideal for a large family, the house is full of light and space and offers six bedrooms, supported by three bathrooms, and then has three main reception rooms and a very impressive kitchen/breakfast room, along with oil fired central heating. Set in some 5 acres of gardens and land which offer a good level of privacy and protection, there is a useful yard with a number of loose boxes and adjoining barns with internal stalls. A modern manege 40m x 20m has also been added by the current owners which makes the property ideal for equestrian use. The house has also been decorated and improved and viewing is highly recommended.

On arrival, a gated drive sweeps round to the front of the house where there is ample parking and turning space. An enclosed porch and front door then lead into a good-sized reception hall with decorative arch, access to cellar and staircase to the first floor. A dining room then has an attractive bay to the front with shuttered windows and uninterrupted rural views. Other features include ceiling cornicing, a picture rail and an attractive open fireplace for colder evenings. The main drawing room lies at one end and also has a fireplace with a fitted wood burner as well as windows and glazed doors leading to outside. From the hall a sitting room also has a bay window to the front of the house and includes a marble fireplace and hearth with wood burner and recessed cupboards and shelving to either side. An open doorway then links to a very impressive kitchen/ breakfast room which is a fantastic space and the heart of this impressive house. A central workstation has an oak top and breakfast bar and there are a range of cupboards and drawers along with granite worktops, a 4 oven Aga, twin deep fill sink, built in Miele dishwasher, Neff oven with 4 ring calor gas hob and walk in pantry. The ground floor is then supported by a good-sized utility, a family room or office and a ground floor cloakroom.

From the hall a staircase leads up to the first-floor landing and to six individual bedrooms as well as three bathrooms one of which is an en-suite to the main bedroom. Four of the bedrooms lie at the front of the house and make the most of the delightful views. From the landing a second staircase leads up to an attic / playroom which offers plenty of additional space when required.

Outside
The house is approached from a small village lane by its own private gated driveway which leads around to the rear of the house, where there is extensive parking and turning space and access to a large double garage which connects through to the house. There are then a very useful range of barns and stables. These include several loose boxes, a tack room, a large steel framed barn with internal stalls and adjoining barn, all offering the potential for a variety of uses.

The gardens lie to the front and side and are laid mainly to lawn with a large sun terrace running the length of the house. There are a variety of shrubs and trees as well as a summerhouse.

The land then slopes away from the house and is well fenced with separate access from the road. The current owners have also added a fibre manege which with the stables and land makes the property ideal for equestrian use. In all the whole plot extends to approximately 5 acres.

Services and Considerations.
Mains water, electricity and drainage are all connected.
Oil fired central heating.
Tenure freehold
Council Tax band G
EPC Rating E 49/71
Broadband https://checker.ofcom.org.uk/
Mobile Phone Coverage https://checker.ofcom.org.uk/
Flood Risk Link https://check-for-flooding.service.gov.uk/location/herefordshire

It is not our company policy to test services and domestic appliances, so we cannot verify that they are in working order. These and any matters relating to Rights of Way should be checked with your Solicitor or Surveyor.

Money Laundering Regulations Prospective purchasers will be asked to produce identification, address verification and proof of funds at the time of making an offer.

If you need help with or are unsure about any of the information contained in these details, please let us know.

Directions
What3Words///daffodils.deflate.jumbo
From Hereford take the A4110 towards Knighton and continue on this road passing through Canon Pyon, Bush Bank and Knapton. After a further 3 miles go straight over at the staggered crossroads and proceed towards Kingsland. Continue out of Kingsland still on the A4110 and pass through Aymestry and Wigmore before entering the
village of Adforton. Immediately after the small church turn left and after a short distance the
entrance to Adforton House will be found on the left hand-side.

Misrepresentation Act 1967

These particulars are believed to be correct but their accuracy is not guaranteed nor do they form part of any contract.

Floorplan Floorplan
Epc rating